Enggårdsvej

Til en villa i en forstad til Esbjerg ønsker et ungt par at udvide pga. familieforøgelse. Der har tidligere haft en anden arkitekt på opgaven som ikke formåede at løde opgaven tilfredsstillende hvorfor vi, via mund til mund metoden, bliver kontaktet herom.

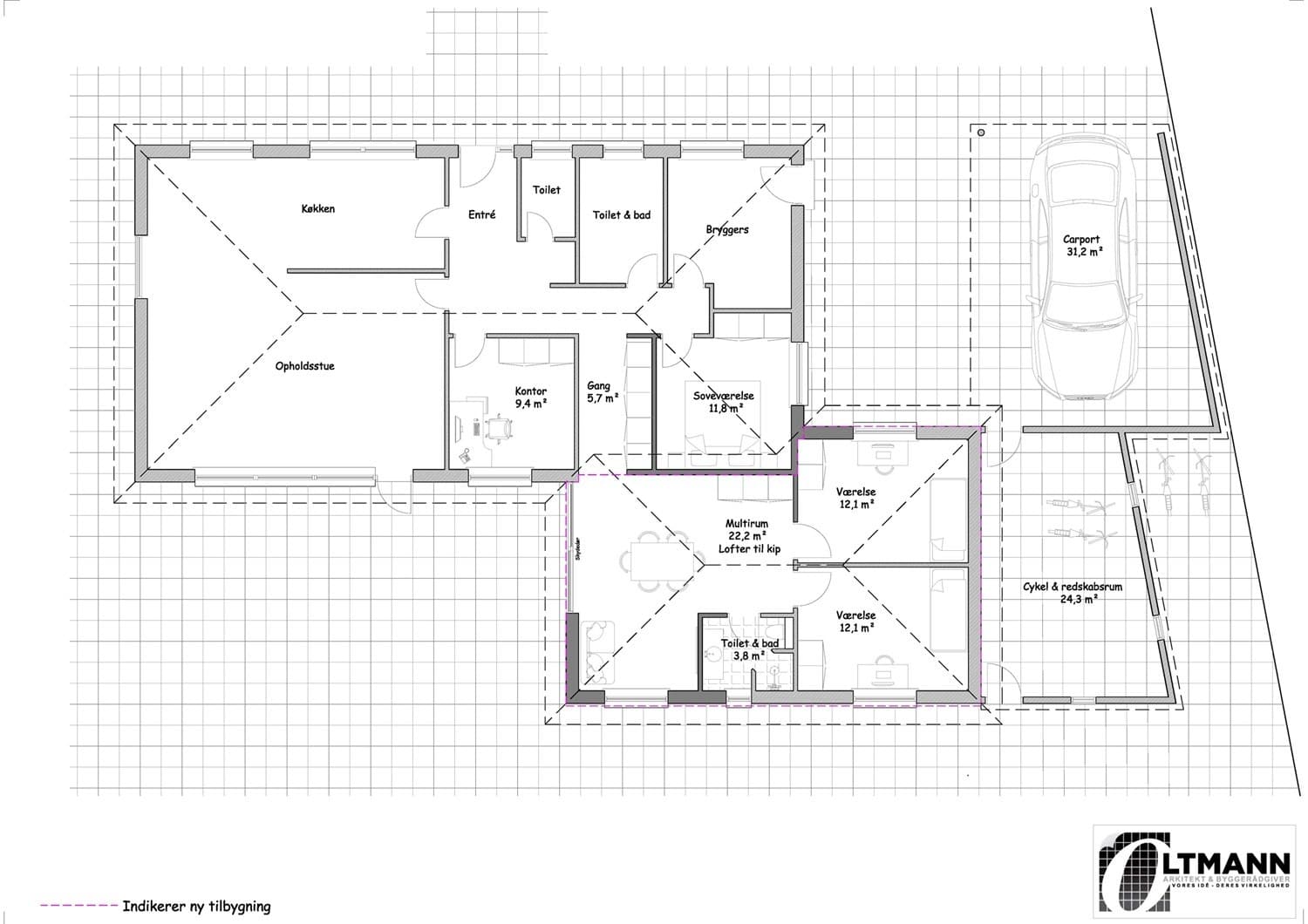
I forbindelse med huset er der opført en dobbelgarage som skal fjernes da den ligger i det område som er det eneste sted på grunden hvor der kan tilbygges​. Tilbygningen skal indeholde et stort aktivitetsrum hvor de ønsker lofter til kip og fra aktivitetsrummet skal der være adgang til 2 store børneværelser og et toilet & bad.

Tilbygningen er tegnet som en tvillingbygning til den eks. bygning som vi vurderede var den løsning der gives det bedste estetiske udtryk. Det er vigtig for ejerne at den færdige tilbygning fremstår som om den altid har være der og da der samtidig skal nyt tag på den eks. bygning blev dette noget nemmere at efterkomme.

Da den eksisterende dobbelgarage er fjernet skal der istedet opføres en vognport i en let konstruktion som skal beklædes med lodret sort træbeklædning som står godt opimod den hvide kalksandsten som hovedhuset og den nye tilbygning fremstår i.

Er dette spændende projekt interessant for jeres byggedrømme så kontakt os i dag for en uforpligtende idémøde.

Skal vi tage en indledende dialog?

Et byggeprojekt kan sammenlignes med et kompas. Uden en klar retning risikerer man at gå omveje. Som arkitekt hjælper vi med at sætte kursen tidligt, så projektet bevæger sig sikkert fra idé til færdigt byggeri. Tag kontakt i dag og få en indledende dialog om dit projekt.