Thorsensvej

For enden af en blind vej i Bramming har vores kunde købt en større grund hvor der ligger en ældre ejendom på den nordlige del af grunden. Kunden der selv driver et større lokalt tømrerfirma har planer om at opdele matriklen i 2 selvstændige matrikler hvor der på den sydlige del af grunden skal opføres et nyt énfamilieshus som han selv skal bo i.

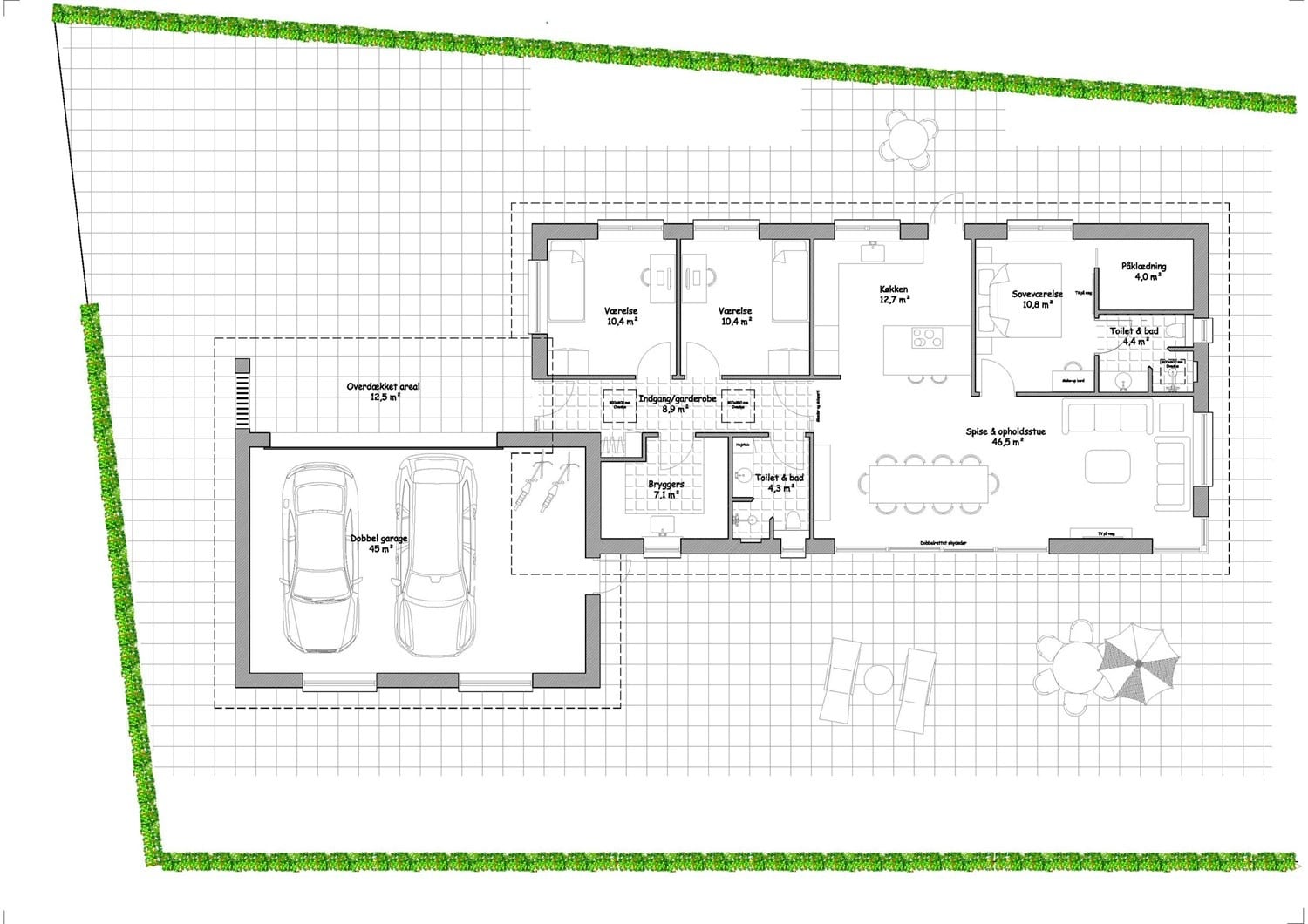
​På den resterende del af grunden er det meningen at der skal opføres 2 fritliggende dobbelhuse. Kravet til den nye bolig var at den ikke måtte være mere end omkring 130 m² brutto boligareal + en integreret dobbelgarage. Vi har tegnet en lille egoistbolig  med et stort centralt køkken/alrum & opholdsstue med skrå lodter og et dejlig lysindfald. Boligen indeholder herudover en voksen afdeling med eget toilet & bad samt et påklædningsværelse

I den modsatte ende af huset er der 2 lige store værelser samt endnu et toilet og bad og et større bryggers hvor boligens tekniske installationer er placeret.​ Der er skrå lofter overalt i boligen hvilket giver en fantastisk rumfornemmelse og som ligeledes lukker  masser af dagslys ind i rummende. Den integrerede dobbelgarage har omvendt tagretning og et stortt udkraget udhæng som giver boligen lidt kant.

Bygningen ligger placeret i den sydlige del af den store grund direkte ud til et rekrativt naturområde selvom det ligger næsten midt i byen. Til dette projekt har vi lavet en fotorealistisk visualisering som giver en god fornemmelse af hvorledes det færdige byggeri vil tage sig ud.

Er dette projekt interresant for dine byggedrømme så kontakt os i dag for et uforpligtende idémøde.

Skal vi tage en indledende dialog?

Et byggeprojekt kan sammenlignes med et kompas. Uden en klar retning risikerer man at gå omveje. Som arkitekt hjælper vi med at sætte kursen tidligt, så projektet bevæger sig sikkert fra idé til færdigt byggeri. Tag kontakt i dag og få en indledende dialog om dit projekt.